Lot 116 - 32 Alltiago Road, Pontarddulais, Swansea, West Glamorgan, SA4 8HU

  • Unconditional Online Auction Sale
  • Guide Price* : £135,000
  • Bedrooms: 3
  • Bathrooms: 2
  • Reception Rooms: 2

*****FOR SALE BY ONLINE AUCTION***** AUCTION REGISTRATION IS NOW OPEN.ALL BIDDERS PAY A HOLDING FEE IN ORDER TO BID IN THE ONLINE AUCTION. THE WINNING BIDDER WILL BE REQUIRED TO PAY THE DEPOSIT WHICH IS 10% OF THE FINAL BID AND THEIR HOLDING FEE IS RETAINED BY THE AUCTIONEERS. IF SOLD PRIOR TO AUCTION NO HOLDING FEE APPLIES BUT A BUYERS’ PREMIUM IS REQUIRED TO EXCHANGE. COMPLETION WILL BE 28 DAYS AFTER EXCHANGE. (UNLESS STATED DIFFERENT ON THE CONTRACT) *** PRE-AUCTION OFFERS WELCOME** 

Description

We have for sale by online auction a three-bedroom detached house with two reception rooms, kitchen, upstairs bathroom and downstairs WC.
Externally there is an enclosed rear garden with patio areas, pagoda, shed, pond and air-raid shelter.
Located close to local amenities, schools and M4 motorway.Popular residential and rental area, excellent potential as BTL investment or family home.
Please note property is currently occupied and the majority of contents will be cleared.

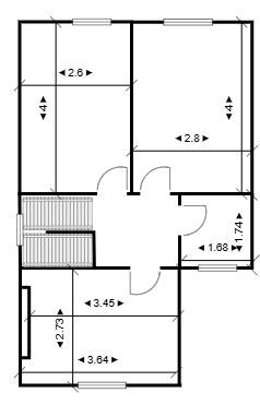
GROUND FLOOR
Entrance: Porch 1.6m x 1.3m – Windows to the front and side.
Reception room 1: 3.9m x 2.9m – Patio doors to rear.
Reception room 2: 3.65m x 2.73m (Max) - uPVC double glazed bay window to front.
Kitchen: 3.2m x 2.9m – uPVC double glazed windows to side and rear, door to side path and rear garden, fitted wall and floor units.
WC: 1.1m x 0.9m – Windows to side.

FIRST FLOOR
Landing: 3.6m x 1.8m - Loft accessBedroom One: 4.0m x 2.8m - uPVC window to rear.
Bedroom Two: 4.0m x 2.6m - uPVC window to rear. Bedroom Three: 3.64m x 2.73m (Max) - uPVC window to front.
Bathroom: 1.74m x 1.68m – uPVC window to side.

EXTERNALLY
Substantial enclosed rear garden, shed, two patio areas, pagoda, pond and air-raid shelter.
Side path with access to garden.

PLEASE NOTE
It is the responsibility of all purchasers to conduct their own investigation into all aspects of the property and seek legal advice. The Legal Pack will be available on our website prior to bidding commencing. Please note legal packs can be downloaded through The Property Auction House website. www.thepropertyauctionhouse.com


PAYMENTS
To bid online you will be required to pay a holding fee this will only be withdrawn from your account should you be the winning bidder.  To exchange you will be required to pay the deposit which is 10% of the winning bid and sign the contract within 24 hours. The balance of funds are payable within 28 days, (this timescale may vary always read the contract in the Legal Pack for confirmation).We always strongly recommend ensuring your finances are in place prior to the auction, due to the timescales involved.
A buyer’s premium fee is ONLY payable should a property be sold PRE-AUCTION; this fee is £4,000 +VAT

Key Feature 1

AUCTION REGISTRATION IS NOW OPEN. THE AUCTION WILL COMMENCE MIDDAY OCTOBER 2ND 2024 AND CONCLUDE MIDDAY OCTOBER 3RD 2024.

Key Feature 2

Detached property with substantial rear garden, close to local amenities, schools and M4.

Key Feature 3

Huge potential as investment property or family home in a popular residential area.

Council Tax Band

D

* Generally speaking Guide Prices are provided as an indication of each seller's minimum expectation, i.e. 'The Reserve'. They are not necessarily figures which a property will sell for and may change at any time prior to the auction. Virtually every property will be offered subject to a Reserve (a figure below which the Auctioneer cannot sell the property during the auction) which we expect will be set within the Guide Range or no more than 10% above a single figure Guide.

Loading the bidding panel...

Agreement Documents

Related Documents

Make an Enquiry

Submit an enquiry and someone will be in contact shortly.

 
*  
*  
*
*
*

Share