AUCTION REGISTRATION IS NOW OPEN.
ALL BIDDERS PAY A HOLDING FEE IN ORDER TO BID IN THE ONLINE AUCTION. THE WINNING BIDDER WILL BE REQUIRED TO PAY THE DEPOSIT WHICH IS 10% OF THE FINAL BID AND THEIR HOLDING FEE IS RETAINED BY THE AUCTIONEERS.
IF SOLD PRIOR TO AUCTION NO HOLDING FEE APPLIES BUT A BUYERS’ PREMIUM IS REQUIRED TO EXCHANGE.
COMPLETION WILL BE 28 DAYS AFTER EXCHANGE.
(UNLESS STATED DIFFERENT ON THE CONTRACT)
*** PRE-AUCTION OFFERS WELCOME***
We have for sale by Online Auction a three-bedroom end of terrace house with two/three reception
rooms, kitchen diner, family bathroom and WC. Externally to the rear there is a patio area and steps
down to an enclosed garden and parking area.
In a popular residential area, located close to local amenities, shops and schools.
Please note there is Japanese Knotweed to the rear of the property.
Tenure: Freehold (FLYING FREEHOLD PLEASE SEE PACK)
Council Tax: A
EPC: TBC
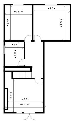
GROUND FLOOR
Entrance: Porch
Kitchen diner: 6.79m x 3.7m - Three uPVC double glazed window to front
Hallway/Reception room one: 6.78m x 2.59m (max) - Skylight.
WC: 1.34m x 0.9m - uPVC double glazed window to side.
Reception room two: 5.3m x 4.15m (max) – 5.3m x 3.46m (min) - uPVC double glazed window to side and rear.
Reception room three: 4.18m x 4.07m (max) – 4.18m x 3.73m (min) – uPVC double glazed window to rear, stairs to first
floor.
FIRST FLOOR
Bedroom One: 4.08m x 3.51m (max) – 3.8m x 3.51m (min) – uPVC window and patio doors to rear.
Bedroom Two: 3.90m x 3.72m - uPVC double glazed window to front, vaulted ceiling.
Room Three: 3.7m x 2.87m - uPVC double glazed window to front.
Bathroom: 2.62m x 2.0m – uPVC double glazed window to side.
EXTERNALLY
Patio area with steps down to enclosed garden and parking area.
PLEASE NOTE
It is the responsibility of all purchasers to conduct their own investigation into all aspects of the property and seek legal
advice. The Legal Pack will be available on our website prior to bidding commencing. Please note legal packs can be
downloaded through The Property Auction House website. www.thepropertyauctionhouse.com
PAYMENTS
To bid online you will be required to pay a holding fee this will only be withdrawn from your account should you be the successful
bidder. To exchange you will be required to pay a 10% deposit and sign the contract within 24 hours and complete the transaction
paying the balance of funds within 28 days, (this timescale may vary always read the contract in the Legal Pack for confirmation).We
always strongly recommend ensuring your finances are in place prior to the auction, due to the timescales involved.
A buyer’s premium fee is only payable should a property be sold pre auction, this fee is 2% subject to a minimum fee of £4,000 +VAT
Auction registration is now open. The auction will commence midday February 25th 2026 and conclude midday February 26th 2026.
Excellent investment potential in a popular residential area.
Located close to local amenities, shops and schools.
A
* Generally speaking Guide Prices are provided as an indication of each seller's minimum expectation, i.e. 'The Reserve'. They are not necessarily figures which a property will sell for and may change at any time prior to the auction. Virtually every property will be offered subject to a Reserve (a figure below which the Auctioneer cannot sell the property during the auction) which we expect will be set within the Guide Range or no more than 10% above a single figure Guide.
Submit an enquiry and someone will be in contact shortly.
By setting a proxy bid, the system will automatically bid on your behalf to maintain your position as the highest bidder, up to your proxy bid amount. If you are outbid, you will be notified via email so you can opt to increase your bid if you so choose.
If two of more users place identical bids, the bid that was placed first takes precedence, and this includes proxy bids.
Another bidder placed an automatic proxy bid greater or equal to the bid you have just placed. You will need to bid again to stand a chance of winning.