We have for sale by Online Sale a substantial three-bed terraced house located close to Llanelli town centre. The property consists of a through lounge-dining room, kitchen, and utility room on the ground floor with three bedrooms and a family bathroom on the first floor.
Externally the property benefits from off-road parking and a paved garden to the rear and residents only parking on the quiet one-way street to the front.
The property is located within walking distance of the beach, millennium park, lake, local schools and amenities.
The property is mortgageable and will appeal to investors and buyers looking for a family home in a sought-after residential area.
Tenure: Freehold
Council Tax: C
EPC: D
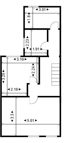
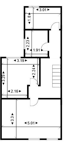
GROUND FLOOR
Reception room: 6.67m x 3.81m (max to alcove) – 6.67m x 3.18m (min) – Bay window to front and uPVC
Kitchen Diner: 4.17m x 3.0m – uPVC double glazed window to side
Utility room: 3.08m x 2.87m – uPVC double glazed window to rear and access to rear garden.
FIRST FLOOR
Bedroom one: 5.0m x 3.3m – two uPVC double glazed windows to front.
Bedroom two: 3.19m x 3.19m (max) – 3.29m x 2.26m (min) – uPVC window to rear.
Bedroom three: 3.01m x 1.8m – uPVC double glazed window to rear.
Bathroom: 2.23m x 1.91m – uPVC double glazed window to side.
EXTERNALLY
Front – Residential parking
Rear – paved garden and access to rear lane.
****ONLINE SALE****
Interested buyers register online and submit their offer through the online platform.
All legal documents and information relevant to the property will be available to download online, at www.thepropertyauctionhouse.com.
It is the buyers’ responsibility to ensure they have researched all aspects of the property and taken independent legal advice.
Purchase funds must be in place when making an offer.
Completion timescales are negotiated and agreed upon before an offer is formally accepted.
When an offer is accepted, the buyer signs the sales contract and pays the non-refundable deposit and fees.
On receipt of contract and funds, the property will be removed from the market and no further offers will be taken.
Contracts are exchanged securing the transaction for all parties.
FEES
Deposit - 5% of purchase price – please note this goes towards the final purchase price.
Buyers Fee - 2%+VAT or minimum £3,000 + VAT
Online registration is now open.
The property is located within walking distance of the beach, millennium park, lake, local schools and amenities.
The property is mortgageable and will appeal to investors and buyers looking for a family home in a sought-after residential area.
C
Submit an enquiry and someone will be in contact shortly.
By setting a proxy bid, the system will automatically bid on your behalf to maintain your position as the highest bidder, up to your proxy bid amount. If you are outbid, you will be notified via email so you can opt to increase your bid if you so choose.
If two of more users place identical bids, the bid that was placed first takes precedence, and this includes proxy bids.
Another bidder placed an automatic proxy bid greater or equal to the bid you have just placed. You will need to bid again to stand a chance of winning.