We have for sale by online auction a three-bedroom, semi-detached house in the popular residential area of Garden Village.
The property has an open plan through lounge-dining room and a kitchen to ground floor, with three bedrooms and a family bathroom to first floor.
Externally there is a small garden to front, private drive to front and side with a detached garage.
The property benefits from a substantial rear garden due to it being a corner plot.
The property is located at the top of a quiet cul-de-sac close to local amenities schools and colleges with excellent transport links.
The property offers excellent investment potential or family home.
Tenure: Freehold
Council Tax: C
EPC: C
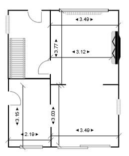
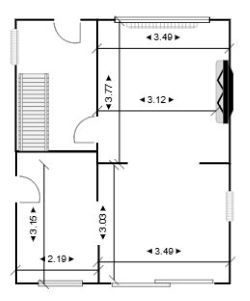
GROUND FLOOR
Entrance hallway: Stairs to first floor, radiator.
Open plan reception room to dining room: 7.08m (max) 3.77m (min) x 3.49m - uPVC double glazed window to front, radiator.
Dining room: 3.31m x 3.03m – Sliding patio doors to rear, radiator.
Kitchen: 3.15m x 2.19m – uPVC window to rear, garden access to side, radiator.
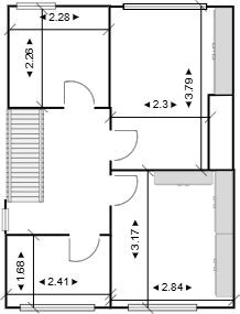
FIRST FLOOR
Landing: Loft access
Bedroom One: 3.79m x 2.46m – uPVC window to font, radiator.
Walk In Closet: 2.12m x 0.52m
Bedroom Two: 3.17m x 2.84m - uPVC double glazed window to rear, radiator.
Bedroom Three: 2.28m x 2.26m – uPVC window to front, radiator.
Bathroom: 2.41m x 1.68m – uPVC double glazed window to rear, radiator.
EXTERNALLY
Garage, off road parking and small walled garden to front, corner plot garden to rear.
PLEASE NOTE
It is the responsibility of all purchasers to conduct their own investigation into all aspects of the property and seek legal advice. The Legal Pack will be available on our website prior to bidding commencing. Please note legal packs can be downloaded through The Property Auction House website. www.thepropertyauctionhouse.com
PAYMENTS
To bid online you will be required to pay a holding fee this will only be withdrawn from your account should you be the successful bidder. To exchange you will be required to pay a 10% deposit and sign the contract within 24 hours and complete the transaction paying the balance of funds within 28 days, (this timescale may vary always read the contract in the Legal Pack for confirmation).We always strongly recommend ensuring your finances are in place prior to the auction, due to the timescales involved.
A buyer’s premium fee is only payable should a property be sold pre auction, this fee is 2% subject to a minimum fee of £3,500 +VAT
Auction registration is now open. The auction will commence midday November 26th 2025 and conclude midday November 27th 2025.
Excellent investment opportunity or family home.
Quiet cul-de-sac location, close to local amenities, shops and schools.
C
* Generally speaking Guide Prices are provided as an indication of each seller's minimum expectation, i.e. 'The Reserve'. They are not necessarily figures which a property will sell for and may change at any time prior to the auction. Virtually every property will be offered subject to a Reserve (a figure below which the Auctioneer cannot sell the property during the auction) which we expect will be set within the Guide Range or no more than 10% above a single figure Guide.
Submit an enquiry and someone will be in contact shortly.
By setting a proxy bid, the system will automatically bid on your behalf to maintain your position as the highest bidder, up to your proxy bid amount. If you are outbid, you will be notified via email so you can opt to increase your bid if you so choose.
If two of more users place identical bids, the bid that was placed first takes precedence, and this includes proxy bids.
Another bidder placed an automatic proxy bid greater or equal to the bid you have just placed. You will need to bid again to stand a chance of winning.