AUCTION REGISTRATION IS NOW OPEN.
ALL BIDDERS PAY A HOLDING FEE IN ORDER TO BID IN THE ONLINE AUCTION. THE WINNING BIDDER WILL BE REQUIRED TO PAY THE DEPOSIT WHICH IS 10% OF THE FINAL BID AND THEIR HOLDING FEE IS RETAINED BY THE AUCTIONEERS.
IF SOLD PRIOR TO AUCTION NO HOLDING FEE APPLIES BUT A BUYERS’ PREMIUM IS REQUIRED TO EXCHANGE.
COMPLETION WILL BE 28 DAYS AFTER EXCHANGE.
(UNLESS STATED DIFFERENT ON THE CONTRACT)
*** PRE-AUCTION OFFERS WELCOME***
We have for sale by online auction a three-storey commercial property in the heart of Port Tenant. The property is a former fish & chip take-away and restaurant with A1 class use.
The freehold property consists of, ground floor kitchen, shop front wash/prep room and wc. Stairs to the basement which was previously used as the restaurant seating area and storage with access to the back yard and lane. Top floor offers an opportunity for further development and potential conversion to a flat. Externally there is a rear garden/parking area with access to the rear lane.
Property offers an excellent opportunity to establish a takeaway or restaurant business in a popular area, with the added potential for a rental property above or live-in accommodation.
Tenure: Freehold
Council Tax : A
EPC: TBC
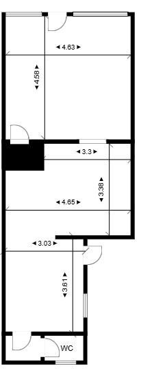
GROUND FLOOR
Shop: 4.63m x 4.58m - uPVC double glazed windows to front.
Kitchen: 4.65m x 3.38m (max) – 3.38m x 3.3m (min)
Prep room: 3.61m x 3.03m - uPVC double glazed window to side.
WC
FIRST FLOOR
Front room: 5.08m x 3.44m (max to alcove) – 4.71m x 3.44m (min) - uPVC double glazed bay window to front.
Kitchen: 3.9m x 1.75m
Middle Room: 3.46 x 3.21m (max to alcove) – 3.46m x 2.85m (min) - uPVC window to rear.
Back Room: 3.1m x 2.57m (max) – 3.1m x 2.07m (min) - uPVC double glazed window to rear.
Bathroom: 2.11m x 1.46m – uPVC double glazed window to side.
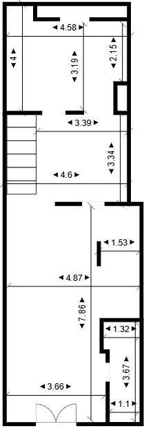
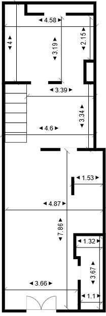
BASEMENT
Room 1: 4.0m x 4.58m (max) – 4.58m x 3.19m (min)
Room 2: 4.6m x 3.34m (max) – 3.39m x 3.34m (min)
Room 3: 4.87m x 4.11m (max) – 4.11m x 1.53m (min)
Room 4: 7.86m x 4.87m (max) – 7.86m x 3.66m (min)
Room 5: 3.67m x 1.32m (max) – 3.67m x 1.1m (min)
EXTERNALLY
Rear access to flat and alley
PLEASE NOTE
It is the responsibility of all purchasers to conduct their own investigation into all aspects of the property and seek legal advice. The Legal Pack will be available on our website prior to bidding commencing. Please note legal packs can be downloaded through The Property Auction House website. www.thepropertyauctionhouse.com
PAYMENTS
To bid online you will be required to pay a holding fee this will only be withdrawn from your account should you be the successful bidder. To exchange you will be required to pay a 10% deposit and sign the contract within 24 hours and complete the transaction paying the balance of funds within 28 days, (this timescale may vary always read the contract in the Legal Pack for confirmation).We always strongly recommend ensuring your finances are in place prior to the auction, due to the timescales involved.
A buyer’s premium fee is only payable should a property be sold pre auction, this fee is 2% subject to a minimum fee of £4,000 +VAT
Auction registration is now open. The auction will commence midday February 25th 2026 and conclude midday February 26th 2026.
An excellent opportunity in a popular area.
The property offers an added benefit of the separate flat for further income or habitation.
A
* Generally speaking Guide Prices are provided as an indication of each seller's minimum expectation, i.e. 'The Reserve'. They are not necessarily figures which a property will sell for and may change at any time prior to the auction. Virtually every property will be offered subject to a Reserve (a figure below which the Auctioneer cannot sell the property during the auction) which we expect will be set within the Guide Range or no more than 10% above a single figure Guide.
Submit an enquiry and someone will be in contact shortly.
By setting a proxy bid, the system will automatically bid on your behalf to maintain your position as the highest bidder, up to your proxy bid amount. If you are outbid, you will be notified via email so you can opt to increase your bid if you so choose.
If two of more users place identical bids, the bid that was placed first takes precedence, and this includes proxy bids.
Another bidder placed an automatic proxy bid greater or equal to the bid you have just placed. You will need to bid again to stand a chance of winning.