Lot 111 - 7 Creswell Road, Neath, West Glamorgan, SA11 1HE

  • Unconditional Online Auction Sale
  • Guide Price* : £35,000
  • Bedrooms: 2
  • Bathrooms: 1
  • Reception Rooms: 2

*****FOR SALE BY ONLINE AUCTION***** AUCTION REGISTRATION IS NOW OPEN.ALL BIDDERS PAY A HOLDING FEE IN ORDER TO BID IN THE ONLINE AUCTION. THE WINNING BIDDER WILL BE REQUIRED TO PAY THE DEPOSIT WHICH IS 10% OF THE FINAL BID AND THEIR HOLDING FEE IS RETAINED BY THE AUCTIONEERS. IF SOLD PRIOR TO AUCTION NO HOLDING FEE APPLIES BUT A BUYERS’ PREMIUM IS REQUIRED TO EXCHANGE. COMPLETION WILL BE 28 DAYS AFTER EXCHANGE. (UNLESS STATED DIFFERENT ON THE CONTRACT)

Description

We have for sale by Online Auction two-bedroom mid terrace house with two reception rooms, kitchen, and 2 bathrooms. Plenty of investment potential. Located close to Neath Town Centre, close to local amenities, shops and schools.
Any purchaser will be required to comply with a Court Order to ensure certain repairs are completed as part of the renovation. These works would be required to comply with rental standards. The relevant documents regarding this order will be in the Legal Pack online.

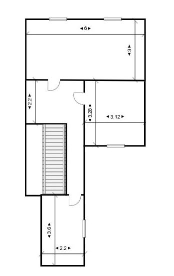
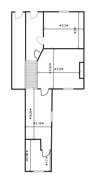
GROUND FLOOR.
Lounge: 3.3m x 3m – uPVC window to front, radiator.
Dining room 2: 3.86m x 3.32m – uPVC window to rear, radiator.
Kitchen: 4.26m x 2.16 – uPVC window to side, radiator.
Bathroom: 2.16m x 2.06m (max) – uPVC window to rear, radiator.

FIRST FLOOR
Bedroom One: 6m x 3m – uPVC double glazed windows to front, radiator.
Bedroom Two: 3.28 x 3.12m - uPVC double glazed window to rear, radiator.Bathroom: 3.6m x 2.2m - uPVC double glazed window to side, radiator.
***PLEASE NOTE DIMENSIONS MAY VARY SLIGHTLY DUE TO ACCESS PROBLEMS***

PLEASE NOTE
It is the responsibility of all purchasers to conduct their own investigation into all aspects of the property and seek legal advice. The Legal Pack will be available on our website prior to bidding commencing. Please note legal packs can be downloaded through The Property Auction House website. www.thepropertyauctionhouse.com

PAYMENTS
To bid online you will be required to pay a holding fee this will only be withdrawn from your account should you be the winning bidder.  To exchange you will be required to pay the deposit which is 10% of the winning bid and sign the contract within 24 hours. The balance of funds are payable within 28 days, (this timescale may vary always read the contract in the Legal Pack for confirmation).We always strongly recommend ensuring your finances are in place prior to the auction, due to the timescales involved.
A buyer’s premium fee is ONLY payable should a property be sold PRE-AUCTION; this fee is £3,500 +VAT 

Key Feature 1

AUCTION REGISTRATION IS NOW OPEN. THE AUCTION WILL COMMENCE MIDDAY SEPTEMBER 18th 2024 AND CONCLUDE MIDDAY SEPTEMBER 19th 2024.

Key Feature 2

Investment opportunity, easy 3/4 bed conversion.

Key Feature 3

Located close to local amenities, shops and schools.

Council Tax Band

B

* Generally speaking Guide Prices are provided as an indication of each seller's minimum expectation, i.e. 'The Reserve'. They are not necessarily figures which a property will sell for and may change at any time prior to the auction. Virtually every property will be offered subject to a Reserve (a figure below which the Auctioneer cannot sell the property during the auction) which we expect will be set within the Guide Range or no more than 10% above a single figure Guide.

Loading the bidding panel...

Agreement Documents

Related Documents

Make an Enquiry

Submit an enquiry and someone will be in contact shortly.

 
*  
*  
*
*
*

Share