AUCTION REGISTRATION IS NOW OPEN.
ALL BIDDERS PAY A HOLDING FEE IN ORDER TO BID IN THE ONLINE AUCTION. THE WINNING BIDDER WILL BE REQUIRED TO PAY THE DEPOSIT WHICH IS 10% OF THE FINAL BID AND THEIR HOLDING FEE IS RETAINED BY THE AUCTIONEERS.
IF SOLD PRIOR TO AUCTION NO HOLDING FEE APPLIES BUT A BUYERS’ PREMIUM IS REQUIRED TO EXCHANGE.
COMPLETION WILL BE 28 DAYS AFTER EXCHANGE.
(UNLESS STATED DIFFERENT ON THE CONTRACT)
*** PRE-AUCTION OFFERS CONSIDERED***
We have for sale by online auction this three-bedroom terrace property, in central Swansea. Located close to local amenities, shops and schools and a short walk from Swansea City Centre and train station.
The accommodation comprises to the ground floor; open plan lounge and dining room and kitchen. To the first floor; there are three bedrooms and a family bathroom. Externally to the rear there is a split-level garden area laid to concrete accessed by steps.
The property provides an excellent investment opportunity or city centre family home.
Tenure: Freehold
Council Tax: B
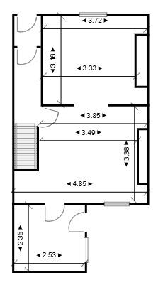
FRONT ENTRANCE HALL: uPVC Front door into porch, stained glass door into hallway, door to reception rooms and stairs to first floor.
RECEPTION ROOM: 3.72m x 3.16m (max to alcove) / 3.33m x 3.16m - uPVC window to front.
DINING ROOM: 4.75m x 3.38m (max to alcove and under stairs) / 3.49m x 3.38m – uPVC window to front
KITCHEN: 2.53m x 2.35m – Window and door to side with access to rear garden. The kitchen comprises of a base unit with stainless-steel sink and drainer.
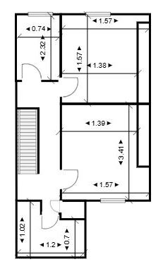
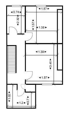
FIRST FLOOR
BEDROOM ONE: 3.13m x 3.14m (max) / 3.14m x 2.78m – uPVC window to rear.
BEDROOM TWO: 3.13m x 3.15m (max) / 3.15m x 2.76m - uPVC double glazed window to front.
BEDROOM THREE: 2.32m x 1.48m – uPVC double glazed window to front
BATHROOM: 2.4m x 2.04m (max) / 1.55m x 1.39m – uPVC double glazed window to side and rear
EXTERNALLY
Steps leading to front door. To the rear there is a split-level concrete garden area accessed by steps from the back door.
PLEASE NOTE
It is the responsibility of all purchasers to conduct their own investigation into all aspects of the property and seek legal advice. The Legal Pack will be available on our website prior to bidding commencing. Please note legal packs can be downloaded through The Property Auction House website. www.thepropertyauctionhouse.com
PAYMENTS
To bid online you will be required to pay a holding fee this will only be withdrawn from your account should you be the winning bidder. To exchange you will be required to pay the deposit which is 10% of the winning bid and sign the contract within 24 hours. The balance of funds are payable within 28 days, (this timescale may vary always read the contract in the Legal Pack for confirmation).We always strongly recommend ensuring your finances are in place prior to the auction, due to the timescales involved.
A buyer’s premium fee is ONLY payable should a property be sold PRE-AUCTION; this fee is £4,000 +VAT
AUCTION REGISTRATION IS NOW OPEN. THE AUCTION WILL COMMENCE MIDDAY DECEMBER 19TH 2024 AND CONCLUDE MIDDAY DECEMBER 20TH 2024.
Located close to local amenities, shops and schools and a short walk from Swansea City Centre and train station.
The property provides an excellent investment opportunity or city centre family home.
B
* Generally speaking Guide Prices are provided as an indication of each seller's minimum expectation, i.e. 'The Reserve'. They are not necessarily figures which a property will sell for and may change at any time prior to the auction. Virtually every property will be offered subject to a Reserve (a figure below which the Auctioneer cannot sell the property during the auction) which we expect will be set within the Guide Range or no more than 10% above a single figure Guide.
Submit an enquiry and someone will be in contact shortly.
By setting a proxy bid, the system will automatically bid on your behalf to maintain your position as the highest bidder, up to your proxy bid amount. If you are outbid, you will be notified via email so you can opt to increase your bid if you so choose.
If two of more users place identical bids, the bid that was placed first takes precedence, and this includes proxy bids.
Another bidder placed an automatic proxy bid greater or equal to the bid you have just placed. You will need to bid again to stand a chance of winning.