AUCTION REGISTRATION IS NOW OPEN.
ALL BIDDERS PAY A HOLDING FEE IN ORDER TO BID IN THE ONLINE AUCTION. THE WINNING BIDDER WILL BE REQUIRED TO PAY THE DEPOSIT WHICH IS 10% OF THE FINAL BID AND THEIR HOLDING FEE IS RETAINED BY THE AUCTIONEERS.
IF SOLD PRIOR TO AUCTION NO HOLDING FEE APPLIES BUT A BUYERS’ PREMIUM IS REQUIRED TO EXCHANGE.
COMPLETION WILL BE 28 DAYS AFTER EXCHANGE.
(UNLESS STATED DIFFERENT ON THE CONTRACT)
*** PRE-AUCTION OFFERS WELCOME***
We have available for online auction, a four-bedroom end terraced house.
The property features two reception rooms, dining room, kitchen, bathroom, study and four bedrooms.
Externally there is an enclosed rear garden with patio area and secure parking.
Located in the popular Sketty area, the property is close to schools, shops and local amenities.
The property was previously licensed rented and as a HMO. Being only a short walk from Swansea University it is a popular area with students. Prospective investment purchasers may want to investigate whether the license can be renewed.
This property offers great potential either as a family home or investment opportunity.
Tenure: Freehold.
Council Tax: E
EPC: D
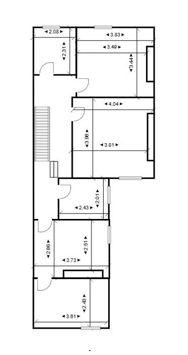
GROUND FLOOR
Reception room 1: 4.41m x 3.43m (min) – 4.66m x 3.43m (max) – Bay window to front.
Reception room 2: 3.78m x 3.9m (min) – 4.05m x 3.9m (max) - uPVC double glazed patio doors to rear.
Dining room: 5.02m x 2.21m (min) – 5.02m x 3.59m (max) – uPVC double glazed window to side, downstairs WC.
Kitchen: 3.49m x 2.44m – uPVC double glazed window to side, fitted wall and floor units.
Utility Room: 2.43m x 2.42m (min) – 3.3m x 2.43m (max) - uPVC double glazed window to side and access to garden.
FIRST FLOOR
Landing: 5.44m x 1.79m (max) - Loft access
Bedroom One: 3.81m x 3.98m (min) - 4.04m x 3.98m - uPVC window to rear.
Bedroom Two: 3.49m x 3.44m (min) – 3.83m x 3.44m (max) - uPVC double glazed window to front.
Bedroom Three: 3.73m x 2.51m (min) - 3.73m x 2.86m (max) - uPVC window to side.
Bedroom Four: 2.31m x 2.08m – uPVC double glazed window to front.
Study: 3.61m x 2.45m – uPVC double glazed window to rear.
Bathroom: 2.45m x 2.01m – uPVC window to side.
EXTERNALLY
Enclosed rear garden, garage and parking.
Side path with access to garden and to reception room two.
PLEASE NOTE
It is the responsibility of all purchasers to conduct their own investigation into all aspects of the property and seek legal advice. The Legal Pack will be available on our website prior to bidding commencing. Please note legal packs can be downloaded through The Property Auction House website. www.thepropertyauctionhouse.com
PAYMENTS
To bid online you will be required to pay a holding fee this will only be withdrawn from your account should you be the winning bidder. To exchange you will be required to pay the deposit which is 10% of the winning bid and sign the contract within 24 hours. The balance of funds are payable within 28 days, (this timescale may vary always read the contract in the Legal Pack for confirmation).We always strongly recommend ensuring your finances are in place prior to the auction, due to the timescales involved.
A buyer’s premium fee is ONLY payable should a property be sold PRE-AUCTION; this fee is £4,000 +VAT
AUCTION REGISTRATION IS NOW OPEN. THE AUCTION WILL COMMENCE MIDDAY FEBRUARY 19TH 2024 AND CONCLUDE MIDDAY FEBRUARY 20TH 2024.
Popular location close to Singleton hospital and the centre of Sketty.
Very popular residential and rental area, excellent potential as an investment or family home.
E
* Generally speaking Guide Prices are provided as an indication of each seller's minimum expectation, i.e. 'The Reserve'. They are not necessarily figures which a property will sell for and may change at any time prior to the auction. Virtually every property will be offered subject to a Reserve (a figure below which the Auctioneer cannot sell the property during the auction) which we expect will be set within the Guide Range or no more than 10% above a single figure Guide.
Submit an enquiry and someone will be in contact shortly.
By setting a proxy bid, the system will automatically bid on your behalf to maintain your position as the highest bidder, up to your proxy bid amount. If you are outbid, you will be notified via email so you can opt to increase your bid if you so choose.
If two of more users place identical bids, the bid that was placed first takes precedence, and this includes proxy bids.
Another bidder placed an automatic proxy bid greater or equal to the bid you have just placed. You will need to bid again to stand a chance of winning.