AUCTION REGISTRATION IS NOW OPEN.
ALL BIDDERS PAY A HOLDING FEE IN ORDER TO BID IN THE ONLINE AUCTION. THE WINNING BIDDER WILL BE REQUIRED TO PAY THE DEPOSIT WHICH IS 10% OF THE FINAL BID AND THEIR HOLDING FEE IS RETAINED BY THE AUCTIONEERS.
IF SOLD PRIOR TO AUCTION NO HOLDING FEE APPLIES BUT A BUYERS’ PREMIUM IS REQUIRED TO EXCHANGE.
COMPLETION WILL BE 28 DAYS AFTER EXCHANGE.
(UNLESS STATED DIFFERENT ON THE CONTRACT)
*** PRE-AUCTION OFFERS WELCOME***
We have for sale by Online Auction a property in Gorseinon containing two self contained two-bedroom
flats. The downstairs flat consists of two bedrooms, a living room, kitchen and bathroom. On the first
floor are two bedrooms, a living room, bathroom, kitchen and balcony. Externally there’s a garden to the
front and garden and patio area to the rear. Located close to Gower College Gorseinon and busy Gorseinon centre.
The first floor flat is currently tenanted at £725 pcm.
Tenure: Freehold
Council Tax: A, A
EPC: D, C
GROUND FLOOR
Entrance hallway
Bedroom 1: 4.6m x 3.09m - uPVC double glazed window to front.
Bedroom 2: 3.49m x 3.23m (max) – 3.49m x 3m (min) - uPVC double glazed window to front.
Living room: 3.96m x 3.87m (max) – 3.96m x 3.36m (min) uPVC double glazed window to side.
Kitchen: 4.08m x 2.84m (max) – 4.08m x 2.66m (min) - uPVC double glazed window to side, Fitted wall and base units, stainless steel sink unit, access to rear garden.
Bathroom: 3.6m x 1.8m - uPVC double glazed window to rear.
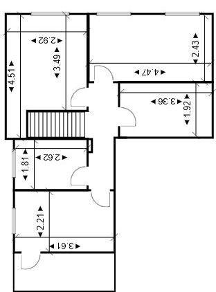
FIRST FLOOR
Entrance: porch and stairs to second floor.
Living room: 4.51m x 2.92m (max) – 3.49m x 2.92m (min) – uPVC window to front.
Bedroom 1: 4.47m x 2.43m - uPVC window to front.
Bedroom Two: 3.36m x 1.96m - uPVC Velux roof window.
Bathroom: 2.62m x 1.81m - uPVC double glazed window to side.
Kitchen: 3.36m x 2.21m – uPVC double glazed window to side and access to rear balcony
EXTERNALLY
Patio
Gardens to front and rear
PLEASE NOTE
It is the responsibility of all purchasers to conduct their own investigation into all aspects of the property and seek legal
advice. The Legal Pack will be available on our website prior to bidding commencing. Please note legal packs can be
downloaded through The Property Auction House website. www.thepropertyauctionhouse.com
PAYMENTS
To bid online you will be required to pay a holding fee this will only be withdrawn from your account should you be the successful
bidder. To exchange you will be required to pay a 10% deposit and sign the contract within 24 hours and complete the transaction
paying the balance of funds within 28 days, (this timescale may vary always read the contract in the Legal Pack for confirmation).We
always strongly recommend ensuring your finances are in place prior to the auction, due to the timescales involved.
A buyer’s premium fee is only payable should a property be sold pre auction, this fee is 2% subject to a minimum fee of £4,000 +VAT
Auction registration is now open. The auction will commence midday November 19th 2025 and conclude midday November 20th 2025.
Located close to Gower College Gorseinon and busy Gorseinon centre.
Offers great investment potential.
A
* Generally speaking Guide Prices are provided as an indication of each seller's minimum expectation, i.e. 'The Reserve'. They are not necessarily figures which a property will sell for and may change at any time prior to the auction. Virtually every property will be offered subject to a Reserve (a figure below which the Auctioneer cannot sell the property during the auction) which we expect will be set within the Guide Range or no more than 10% above a single figure Guide.
Submit an enquiry and someone will be in contact shortly.
By setting a proxy bid, the system will automatically bid on your behalf to maintain your position as the highest bidder, up to your proxy bid amount. If you are outbid, you will be notified via email so you can opt to increase your bid if you so choose.
If two of more users place identical bids, the bid that was placed first takes precedence, and this includes proxy bids.
Another bidder placed an automatic proxy bid greater or equal to the bid you have just placed. You will need to bid again to stand a chance of winning.